Wohngebiet Zimmern-Ost II
Zimmern ob Rottweil


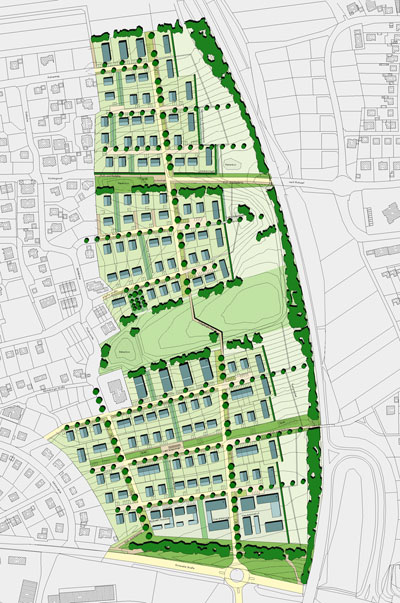
Die Rahmenbedingungen für die geplante Wohnbaufläche Zimmern-Ost sind ungewöhnlich schwierig: im Osten führt eine stark befahrene Bundesstraße rund um das Gebiet, mittig befindet sich ein Abwasser-Überlaufbecken, südlich davon liegt ein relativ steiler Nordhang an. Daher entschied sich die Gemeinde für die Auslobung einer Mehrfachbeauftragung.

Unser Entwurf nimmt engen Bezug auf die Topographie: die vorhandenen Geländemulden bleiben frei und unterteilen als Grünzäsuren die Bebauung in drei Siedlungskörper von angemessener Größe, die als einzelne Bauabschnitte entwickelt werden können. Innerhalb der Baufelder verlaufen schmale Grünstreifen als informelle Wegeverbindungen und zur Ableitung des Oberflächenwassers. Die Stellung der Baukörper ist zwischen trauf- und giebelständig differenziert, um ein vielfältiges Straßenbild zu erreichen und die Besonnung und Aussicht aller Häuser zu optimieren - besonders am Nordhang.

Die Erschließung der Teilgebiete erfolgt über vorhandene Anschlüsse aus den benachbarten Quartieren und stellt so den Zusammenhang mit dem Ort her. Die Ausbildung des östlichen Gebietsrandes folgt der Lärm-Problematik: Die Baufelder treten von der Straße zurück. Am östlichen Ortsrand schirmen schmale, ins Gebiet orientierte Doppelhaus-Typen mit Lärmschutz-Grundrissen die Wohngebiete zusätzlich ab.


Verantwortlich: Helmut Krisch, Rüdiger Krisch
Mitarbeit: Katrin Halbeck, Arun Gandbhir

Auslober:
Gemeinde Zimmern ob Rottweil

Planungsvorgang:
Mehrfachbeauftragung (Städtebaulicher Vorentwurf) 2004
1. Rang

Größe des Planungsgebietes: ca. 18 Hektar

Copyright © 2008
Alle Rechte vorbehalten