Wohngebiet Barbel-West
|
||
![]() |
||
|
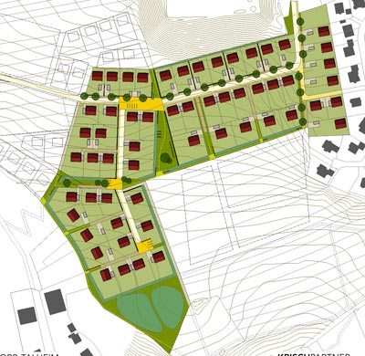
Nachdem der Gemeinderat der Stadt Horb beschlossen hatte, anlässlich der Kommunalwahl im Jahr 2004 die Dörfer Unter- und Obertalheim zum Ortsteil Talheim zu vereinigen, sollte ein gemeinsames neues Wohngebiet auf der Höhenlage oberhalb der Dorfkerne die neue Zusammengehörigkeit auch baulich ausdrücken. Wir erarbeiteten zunächst den städtebaulichen Entwurf für das Gesamtgebiet, später dann auch die verbindliche Bauleitplanung zum ersten Erschließungsabschnitt. |
||
| Das Entwurfskonzept geht auf die bewegte Topographie ein, weist aber gleichzeitig eine klare Bebauungsstruktur auf. Öffentliche Räume und Grünstreifen gliedern das Wohngebiet in überschaubare Nachbarschaften, ohne seine Zusammengehörigkeit in Frage zu stellen. |
||
| Verantwortlich: Rüdiger Krisch Projektleitung: Katrin Halbeck (Rahmenplan), Nicoletta Rehsöft (Bebauungsplan) |
||
| Auftraggeber: Stadt Horb, Fachbereich Stadtentwicklung |
||
| Planungsvorgang: Städtebauliche Rahmenplanung 2004-07 Verbindliche Bauleitplanung 2010 Erschließung: 2011 |
||
| Planungspartner: Büro Gfrörer, Empfingen (Grünordnung) Büro Kronenbitter, Horb (Infrastruktur) |
||
| Copyright © 2012 Alle Rechte vorbehalten |
||