
|
|
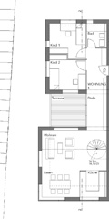
Anstelle eines Hauses aus den Fünfziger Jahren, das in Sachen Erscheinungsbild und Grundstücksausnutzung nicht mehr den Anforderungen an eine zeitgemäße Filiale der regional führenden Sparkasse entsprach, entsteht derzeit ein größeres Gebäude mit einer Filiale der Bank im Erdgeschoss und 3 Wohnungen in verschiedenen Größen in den Obergeschossen. Während die neue Bankfiliale höchsten Ansprüchen an Flexibilität und Kundenfreundlichkeit erfüllt, sind die Wohnungen um geschützte private Freiräume angeordnet und bieten dadurch eine Wohnqualität, die an ein Haus mit Atrium erinnert (siehe Grundriss links).
Neben der gestalterischen Aufwertung der Geschäftsräume und des Straßenbildes sowie der städtebaulich erwünschten Schaffung von zusätzlichem Wohnraum verfolgen Bauherr und Planungsteam das Ziel eines besonders ressourcenschonenenden Wohn- und Geschäftshauses. Das Gebäude wird den Energiestandard KfW-40 erheblich unterschreiten und annähernd die Werte eines Passivhauses erreichen.
|
|
|
Verantwortlich: Rüdiger Krisch Projektleiter: Hans-Ulrich Braun
Bauherr: Kreissparkasse Tübingen
Fachplaner: Albrecht Enderle, Tübingen-Derendingen (Statik) Büro ebök, Tübingen (Energieberatung und H/L/S)
Büro Zeeb+Frisch, Kirchentellinsfurt (Elektro)
Fertigstellung: Frühjahr 2009
Standort: Tübingen-Derendingen, Heinlenstraße 13
Fotos: Thomas Fütterer, Stuttgart
|