Pfarrkirche St. Aegidius, Tübingen-Hirschau
Sanierung und Neugestaltung


Die Hirschauer Kirche, deren Bausubstanz aus dem 15. und 19. Jahrhundert stammt, benötigte eine technische Sanierung der Gebäudetechnik. Die Kirchengemeinde entschloss sich dazu, in diesem Zusammenhang auch die grundlegende Neugestaltung des Kircheninneren in Angriff zu nehmen, die den Gottesdienstraum an veränderte Gemeindestrukturen und neue liturgische Erfordernisse anpassen sollte.

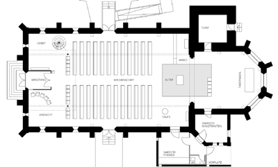
Dafür wurde ein neuer, kleinerer Zelebrationsaltar auf einer Insel im Kirchenschiff vor dem Triumphbogen angeordnet und so das Zentrum der Gottesdienstfeier näher an die Gläubigen herangerückt. Die ursprüngliche Dreischiffigkeit des Kirchenraumes kommt wieder zum Ausdruck durch die neue, auf die Breite des Mittelschiffs verkleinerte Empore und das räumlich wirksame Beleuchtungskonzept. Die Sakristei wurde erweitert und mit einem neuen Zugang ins Kirchenschiff versehen.

In enger Zusammenarbeit mit den Denkmalschutzbehörden einigte man sich auf eine kompromisslos zeitgenössische Formensprache für alle neuen Interventionen, die einen spannungsvollen Dialog zwischen neu und alt erzeugt.


Verantwortlich: Rüdiger Krisch
Projektleiter: Hans-Ulrich Braun

Bauherr: Kath. Kirchengemeinde Tübingen-Hirschau
Planungsvorgang: Einladungswettbewerb, 1. Rang

Planungspartner:
Günter Hölldampf, Stuttgart (Elektro)
Joachim Maria Hoppe, Thayning (Bildhauer)
Hans-Ulrich Ströbel, Tübingen (Statik)

Fertigstellung: Ostern 2004

Standort: Kingersheimer Straße (Kirchplatz), Hirschau

Fotos: Joachim Feist, Pliezhausen
Copyright © 2004
Alle Rechte vorbehalten